Kirjeldus
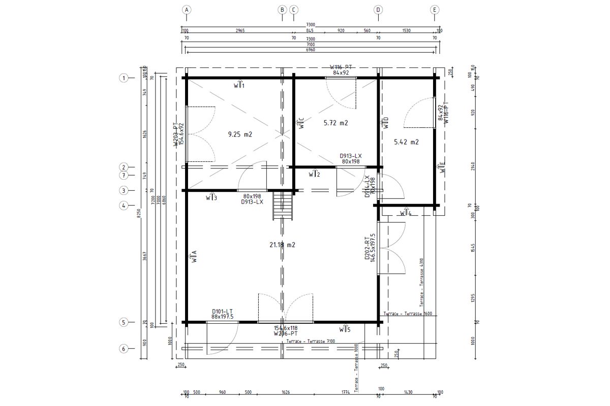
| Välismõõt: | 730 x 720 |
| Seina kõrgus: | 254 cm |
| Harja kõrgus: | 377 cm |
| Seina paksus: | 70 mm |
| Sisemine pindala: | 42,5 m² |
| Katus: | Ca 67 m², 18 mm |
| Põrand: | 28 mm |
| Uksed: | 1 x topeltuks 154 x 198 cm; 1 x uks 90 x 198 cm; 2 x siseuks 90 x 198 cm; 1x siseuks 70 x 198 cm |
| Aknad: | 1 x topeltaken 154 x 114 cm; 1 x topeltaken 154 x 88 cm; 1 x aken 80 x 88 cm; 1 x aken 51 x 51 cm (kõik karastatud topeltpakett) |
| Materjal: | Põhjamaine kuusk, immutamata |
| Lisainfo: | Immutatud vundamendiprussid, tormiliistud, montaaživahendid, klaasitud aknad ja uksed, silinderlukk, tootejuhend, garantii 5 aastat. |















Arvustused
Tooteülevaateid veel ei ole.